ATTACHED 4 BEDROOM PERIOD COTTAGE WITH OUTBUILDINGS IN NEED OF COMPLETE RENOVATION - SET IN BLACKDOWN HILLS
Clayhidon, Devon, EX15 3TU
- 19
Key features
Guide Price: *
£350,000
Fees apply
Buyer's fee:£3,960
Admin fee:£344.40
Legal fee:£2,958
All fees include VAT at 20%
Holding Deposit: *£1,040
*Only charged if you are the successful buyer and goes towards the purchase price
Auction Type:
† Traditional
Sold for:
£382,750Bid history
10 bidsSThis is an automatic bid as the bidder has set a maximum bid for this lot
17/03/2025 12:24:12 - £382,750
J
17/03/2025 12:23:48 - £381,750
SThis is an automatic bid as the bidder has set a maximum bid for this lot
17/03/2025 12:10:31 - £380,750
See all 10 bids ▾
An attractive attached period home in the Parish of Clayhidon, now in need of complete modernisation. Set in 0.6 acre and a range of outbuildings. It offers immense potential – The property is to be sold by online auction, closing at 12.30pm on 17th March 2025
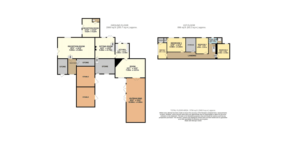
Wildwood House is situated in a rural location in the Blackdown Hills and sits in established grounds of around 0.6 acre. The property comprises a number of ground floor rooms and attached outbuildings all offering great potential to create a charming home. On the first floor can be found four bedrooms and a shower room . Whilst the gardens are now overgrown there is evidence of some beautiful shrubs and trees along with two greenhouses – we have no doubt that when restored the gardens will once again be a beautiful feature of this property. Situated around 5 miles from the town of Wellington with access to J26 of the M5 motorway. The thriving village of Hemyock is 3 miles away. Health & Safety Please be aware of trip hazards both in the house and garden – there is no electricity switched on and some rooms are dark. There is no access to the front porch due to storm damage to the porch roof.
The foul drainage system for Wildwood House is not compliant with the Environmental Permitting (England and Wales) Regulations General Binding Rules.
TRADITIONAL ONLINE AUCTION INFORMATION
Please note: This property is for sale by traditional online auction. This means that exchange will occur when the online timer reaches zero (provided the seller's reserve price has been met or exceeded). The winning buyer will be legally obliged to purchase the property at this price.
PRICING INFORMATION
The guide price amount specified is an indication of each seller's minimum expectation. It is not necessarily the amount at which the property will sell. Each property will be offered subject to a reserve (a figure below which the property will not be sold) which we expect will be set no more than 10% above the guide price amount. Webbers and Bamboo Auctions shall not be liable for any inaccuracies in the fees stated on this description page, in the bidding confirmation pop up or in the particulars. Buyers should check the contents of the legal pack and special conditions for accurate information on fees. Where there is a conflict between the fees stated in the particulars, the bid information box or the bidding confirmation pop up and the contents of the legal pack, the contents of the legal pack shall prevail. Stamp Duty Land Tax or Land and Buildings Transaction Tax may also apply in some circumstances.
BUYERS PREMIUM & OTHER CHARGES
The winning buyer is charged a sum of £5,000. From this a buyer’s fee of £3,300 plus VAT is retained by Webbers/Bamboo Auctions as a contribution towards online platform costs and £1,040 is payable towards the purchase price. On completion the Buyer will pay to the Seller’s solicitors the sum of £2,973.00 towards the legal costs and disbursements together with £271.60 (inc vat) for reimbursement of search fees.
LEGAL ADVICE
We strongly recommend that a buyer takes independent legal advice and instructs solicitors to act on their behalf. Each party bears their own legal costs unless otherwise stated.
PLANNING
It is the responsibility of the proposed buyer to satisfy for themselves independently that their intended use complies with existing planning permission by contacting the local council planning department. The cost of any change of planning use is the buyer’s responsibility.
An attractive attached period home in the Parish of Clayhidon, now in need of complete modernisation. Set in 0.6 acre and a range of outbuildings. It offers immense potential – The property is to be sold by online auction, closing at 12.30pm on 17th March 2025
Wildwood House is situated in a rural location in the Blackdown Hills and sits in established grounds of around 0.6 acre. The property comprises a number of ground floor rooms and attached outbuildings all offering great potential to create a charming home. On the first floor can be found four bedrooms and a shower room . Whilst the gardens are now overgrown there is evidence of some beautiful shrubs and trees along with two greenhouses – we have no doubt that when restored the gardens will once again be a beautiful feature of this property. Situated around 5 miles from the town of Wellington with access to J26 of the M5 motorway. The thriving village of Hemyock is 3 miles away. Health & Safety Please be aware of trip hazards both in the house and garden – there is no electricity switched on and some rooms are dark. There is no access to the front porch due to storm damage to the porch roof.
The foul drainage system for Wildwood House is not compliant with the Environmental Permitting (England and Wales) Regulations General Binding Rules.
TRADITIONAL ONLINE AUCTION INFORMATION
Please note: This property is for sale by traditional online auction. This means that exchange will occur when the online timer reaches zero (provided the seller's reserve price has been met or exceeded). The winning buyer will be legally obliged to purchase the property at this price.
PRICING INFORMATION
The guide price amount specified is an indication of each seller's minimum expectation. It is not necessarily the amount at which the property will sell. Each property will be offered subject to a reserve (a figure below which the property will not be sold) which we expect will be set no more than 10% above the guide price amount. Webbers and Bamboo Auctions shall not be liable for any inaccuracies in the fees stated on this description page, in the bidding confirmation pop up or in the particulars. Buyers should check the contents of the legal pack and special conditions for accurate information on fees. Where there is a conflict between the fees stated in the particulars, the bid information box or the bidding confirmation pop up and the contents of the legal pack, the contents of the legal pack shall prevail. Stamp Duty Land Tax or Land and Buildings Transaction Tax may also apply in some circumstances.
BUYERS PREMIUM & OTHER CHARGES
The winning buyer is charged a sum of £5,000. From this a buyer’s fee of £3,300 plus VAT is retained by Webbers/Bamboo Auctions as a contribution towards online platform costs and £1,040 is payable towards the purchase price. On completion the Buyer will pay to the Seller’s solicitors the sum of £2,973.00 towards the legal costs and disbursements together with £271.60 (inc vat) for reimbursement of search fees.
LEGAL ADVICE
We strongly recommend that a buyer takes independent legal advice and instructs solicitors to act on their behalf. Each party bears their own legal costs unless otherwise stated.
PLANNING
It is the responsibility of the proposed buyer to satisfy for themselves independently that their intended use complies with existing planning permission by contacting the local council planning department. The cost of any change of planning use is the buyer’s responsibility.
Summary
- Auction end
- 17th Mar at 12:30
- Property type
- Semi-Detached
- Tenure
- Freehold
- Bedrooms
- 4
- Bathrooms
- 1
- Council tax band
- F
Guide Price: *
£350,000
Fees apply
Buyer's fee:£3,960
Admin fee:£344.40
Legal fee:£2,958
All fees include VAT at 20%
Holding Deposit: *£1,040
*Only charged if you are the successful buyer and goes towards the purchase price
Auction Type:
† Traditional
Sold for:
£382,750Bid history
10 bidsSThis is an automatic bid as the bidder has set a maximum bid for this lot
17/03/2025 12:24:12 - £382,750
J
17/03/2025 12:23:48 - £381,750
SThis is an automatic bid as the bidder has set a maximum bid for this lot
17/03/2025 12:10:31 - £380,750
See all 10 bids ▾
Summary
- Auction end
- 17th Mar at 12:30
- Property type
- Semi-Detached
- Tenure
- Freehold
- Bedrooms
- 4
- Bathrooms
- 1
- Council tax band
- F
This property is being sold by:

Webbers - Wellington
01823 664333
4 South Street, Wellington, Somerset, TA21 8NS
†Traditional auction
Exchange occurs at the end of the auction. This means that if the reserve is met or exceeded and the auction timer reaches zero, the successful bidder is legally obliged to pay the purchase price and the seller will be legally obliged to sell the property. To ensure that the successful bidder proceeds, the buyer is automatically charged a holding deposit, which is held in a secure client account, pursuant to the terms of a holding deposit agreement.
* Pricing Information
The Guide Price amount specified is an indication of each seller's minimum expectation. It is not necessarily the amount at which the property will sell. Each property will be offered subject to a Reserve (a figure below which the property will not be sold) which we expect will be set no more than 10% above the Guide Price amount.
Bamboo Proptech and Webbers Online Auction shall not be liable for any inaccuracies in the fees stated on this description page, in the bidding confirmation pop up or in the particulars. Buyers should check the contents of the legal pack and special conditions for accurate information on fees. Where there is a conflict between the fees stated in the particulars, the bid information box above or the bidding confirmation pop up and the contents of the legal pack, the contents of the legal pack shall prevail.
Stamp Duty Land Tax or Land and Buildings Transaction Tax may also apply in some circumstances.
Refreshing the Page
To make sure that you are seeing the latest information for the property, we recommend you refresh the page. This ensures you're seeing live information and not stored (cached) data. If the page disconnects from the Internet, refreshing the page will show the latest information.
Disclaimer
All information relating to this property, including descriptions, pictures and other related information has been provided by Webbers Online Auction. All legal documents in relation to this property have been provided by the Vendor's solicitor. Neither Bamboo Proptech or any individual in employment with Bamboo Proptech makes any warranty as to the accuracy or completeness of any of the property information.
These particulars do not form part of any contract or offer. Buyers should not rely on them as statements of representation and should check that the information is correct by inspection or otherwise. Where there is a conflict between the contents of the legal documents and these particulars, the information contained in the legal documents shall prevail.
Pursuant to the Auctioneer Act 1845, this auction is being conducted by the auctioneer stated above. All participants in this online auction shall note that both the Auctions (Bidding Agreements) Act 1927 and 1969 shall apply.
Where stated in the bid box above, you agree that Bamboo may pre-authorise your card for the amount of the Buyer's fee and Deposit. You will only be charged if you are the winning buyer. We will release the pre-authorisation at the end of the auction. You card issuer may take up to 10 working days for this amount to be available to you in your account.
